Nos réalisations de projets de construction de particuliers à Holtzheim et alentour
Découvrez les projets de construction des particuliers que nous avons accompagnés.
Confiez la construction de votre maison à notre architecte
Envie de construire votre maison ? De nombreuses étapes sont à prendre en compte. Pour faciliter votre projet, Claude Schwengler Architecte vous accompagne, vous conseille et assure le bon déroulement des travaux.
Découvrez certains des projets neufs que nous avons réalisés pour des particuliers. Vous pouvez également faire appel aux services de notre architecte pour vos rénovations et agrandissements. Pour plus de renseignements, contactez-nous par mail ou par téléphone. Nous réalisons votre devis gratuitement.
Construction d'un immeuble de cinq logements
Construction d'une maison individuelle
Aménagement d'une grande en cinq logements
Construction d'une maison contemporaine
Construction d'une maison contemporaine
Maison ossature bois
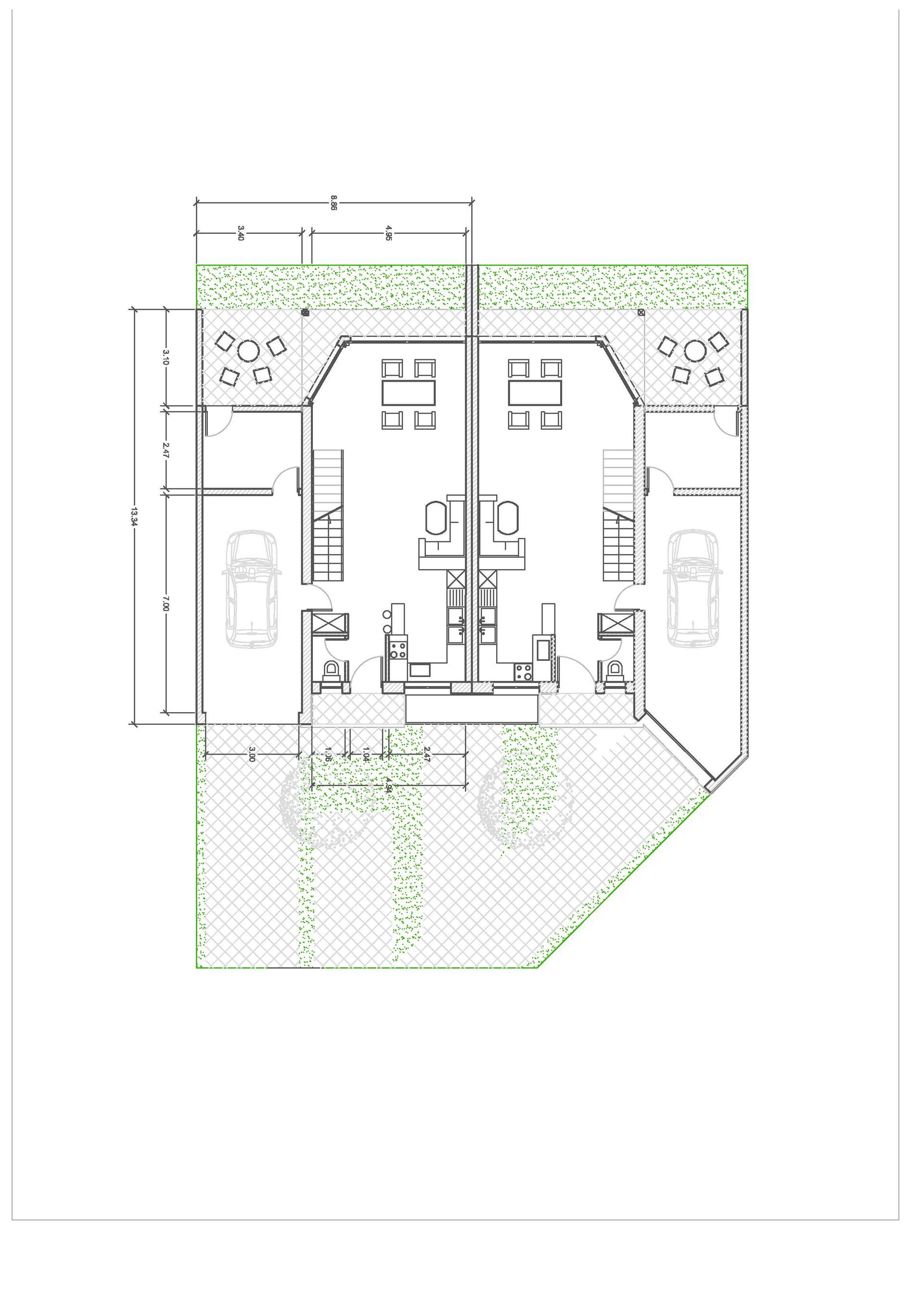
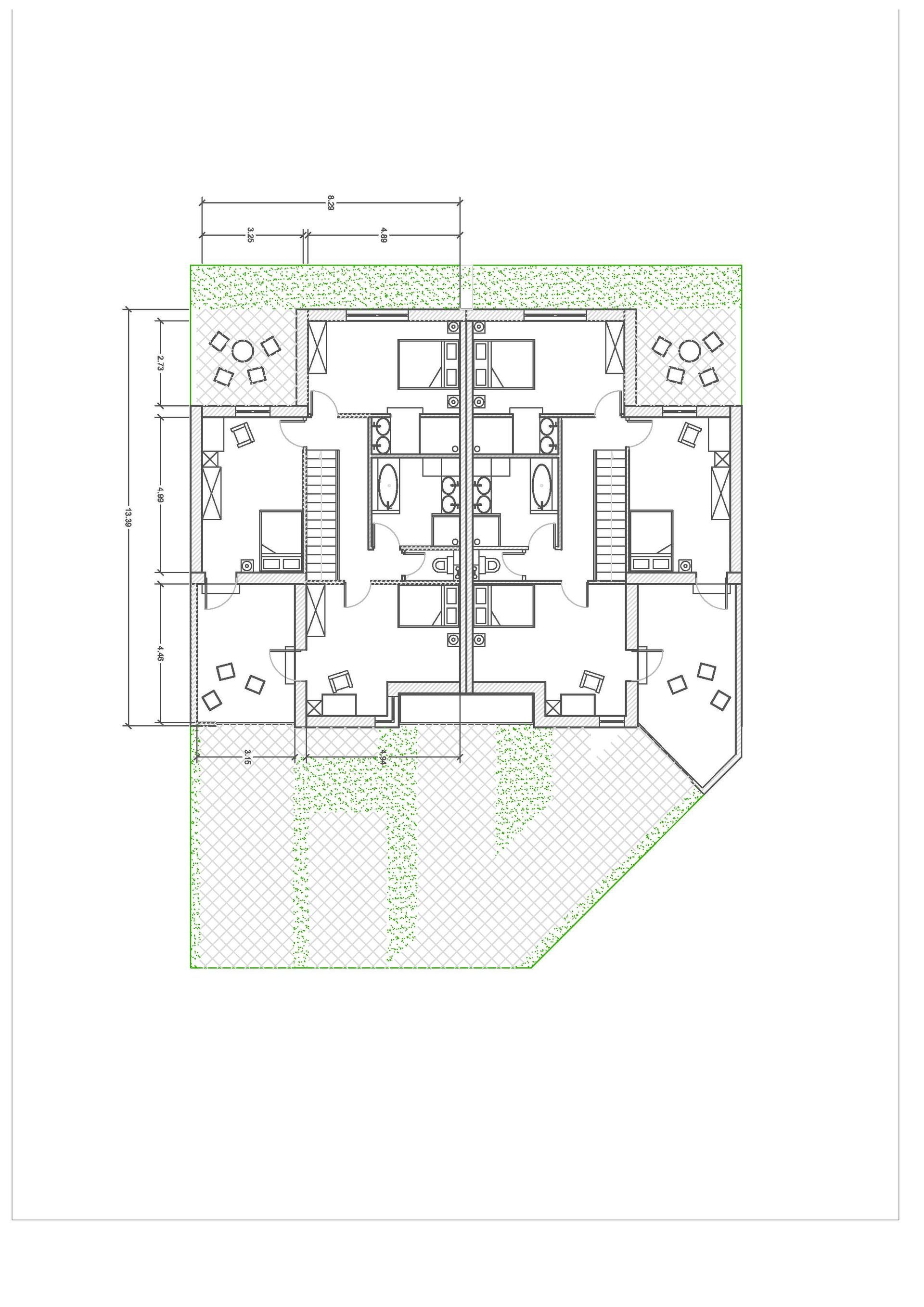
Maison bifamille – MARLENHEIM
Maison – KIRCHHEIM
Maison bifamille – OBERSCHAEFFOLSHEIM
Agrandissement d’une maison – HOENHEIM
Construction maison individuelle – STRASBOURG
Une question ?



































